Custom Trailer Project
During the Fall I was half heartedly looking for a used flatbed trailer. I spoke with my friend Andy about this and he suggested instead that we build one - in his shop. I did not think that a new trailer in the $4000 range was viable but he explained that building would be cheaper than buying a used one. Also sturdier and in much better condition.
Over the winter I began to collect the pieces.
- Torsion box suspension 3500 lb axles with electric brakes. $200 each
- Tires were priced at over $250 each locally without rims. We found new tires and rims $70 each
- Fenders were found that another friend had. New and aluminum at that. $30
- Three 20 foot length of C Channel 3/16 inch thick 5 inch steel was purchased $300
- Jack and 10000 lb trailer coupler.

Two 3500 lb axles with torsion box suspension and electric brakes

Wheels and tires. Sitting on top are the fenders
Step one was to determine a design. The main consideration was to use the existing cradle and bolt it to a trailer frame. By building in this manner the trailer can be used for future boats in the event this one gets sold. The cradle will sit on a frame we will build that will be as low as possible.

Trailers used to make the design. Above a pair of J-24 trailers.
Below J27 Cuckoo Voodoo on a P5000 trailer by Marine Cradle Shop and J27 Remedy on modified Etchells trailer.

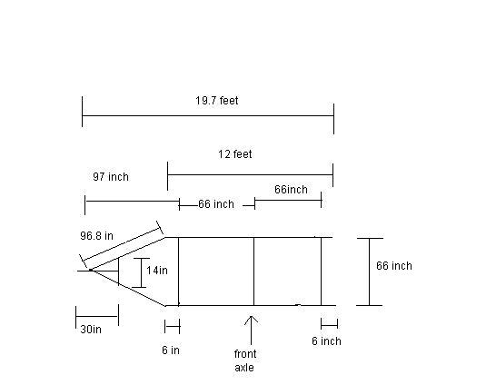
Above and below. Cradle and boat measurements. The pic below the numbers are from scale drawing so are approximate

The initial design.
The initial design proposal above shows the frame and positions of the cross members and axle on which the cradle will sit. Some changes were made as we began construction but it is essentially the same. We added vertical cross member beams to back and at bend to give the frame its proper support. We also moved the fore and aft cradle support cross members to 8 inches from the ends to allow us to move the cradle fore or aft for balancing the tongue weight. The center of the keel will be 6 - 8 inches forward of the center of the axles as Marine Cradle Shop graciously helped me with these measurements. Note that the cradle was manufactured at the MCS facility.
We finally started work on Saturday May 1 2010. I have worked with a lot of materials on various projects around house, boat and car - but never before have I worked with steel. Seeing huge showers of sparks shoot 6 feet in the air when cutting steel is a new experience. Especially when some are shooting at me! Andy on the welder with what I initially mistook for a motor cycle helmet and Mike bending steel using only my arms. Welcome to the big time and as my buddy Bender would say "Bite my Shiny Metal A$$".

The frame takes shape.


Aft end. Note the aft cradle support cross member. 5 inch C channel

Front cross member cradle support. Welds at the bend. I bent that!

Front before coupler installation. Note plate steel added at front and below for support

Andy welding on the trailer coupler using his new Wire Feed MIG Welder

Mike gets to show off his "welding hat" ...

Test fit atop one of the axles

Axle spacing complete and frame temporarily atop axles - starting to look like a trailer!

Jack attached, axles welded on, left fender& wheels in place

Coffee cups make great spacers!

Tightening the final bolts

We're done!
The trailer is now built. Still to do is wiring followed by registration and inspection and painting. The cradle will sit in this frame and will be bolted in place. Costs to date $1200 and 50 hours for trailer and $1328 for the cradle. $2500 for a brand new trailer vs. $4300 to buy a new one. Not that bad.
Oh - and everyone will notice the protective plastic coating is still on one fender. It seems to have been exposed to UV so does not easily peel. A project for another day.

Above the trailer after coat of primer. Is now licensed, inspected and highway legal. Wiring has been dropped in some areas for easier painting. Below with first coat of blue topcoat applied.

Finally finished. Costs $1550 thanks to some friends with connections and welding shops



After first highway trip